В центре Полтавы организуют ярмарку длиною в год

В центре Полтавы организуют ярмарку длиною в год

В центре Полтавы организуют ярмарку длиною в год фото: poltava.sq.com.ua

События
26 января 2022 09:13
Автор: Юлия Булыга

В Полтаве на площади у театра имени Н.В. Гоголя планируют организовать торгово-выставочную ярмарку "Полтавская ярмарка".

Не забудьте подписаться на канал Vgorode.ua в Telegram 

В проекте решения Полтавского горисполкома, опубликованном 25 января на сайте городского совета, инициатором проведения ярмарки стало коммунальное предприятие "Полтава-сервис".

Власти организуют продажу товаров широкого потребления и демонстрацию продукции.

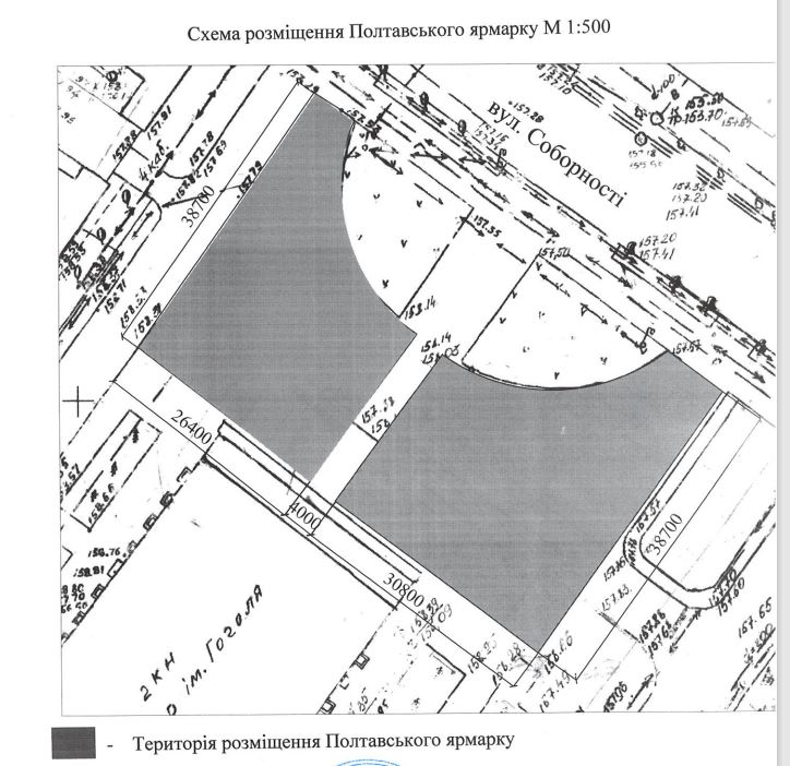
Схема размещения ярмаркиСхема размещения ярмарки фото: rada-poltava.gov.ua

Предполагается, что ярмарка будет действовать с 25 февраля 2022 года по 25 февраля 2023 года при соблюдении карантинных ограничений.

Будьте в курсе последних новостей, подпишитесь на группы Vgorode в Facebook и Viber

Это чат – пиши и читай 👇
Ого! ты доскролил до нашего чатбота 😏
Теперь у тебя есть возможность настроить его под себя и узнавать важный контент первым, чтобы рассказывать друзьям
Только почта, только хардкор 🤘
Мы в соцсетях